DUISBURG | SPORTWELT DES OSC 04 RHEINHAUSEN
Vielfältiges Sportangebot
- Bauherr: OSC 04 Rheinhausen
- Bauzeit: 2014-2016
- Kosten: 780.000 € (Kunststoffrasen), 3,6 Mio. € (Vereins- und Bewegungszentrum)
Vielfältiges Sportangebot
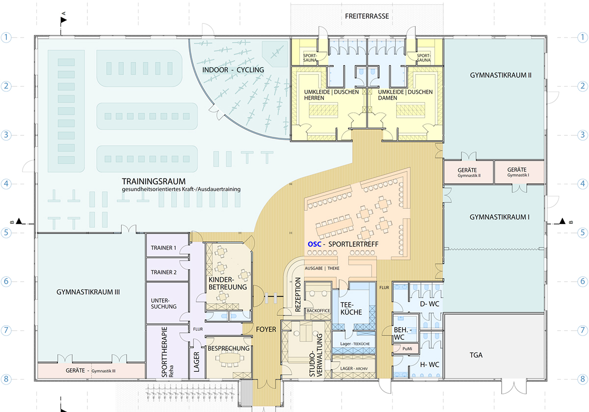
Nach Abschluss umfangreicher Baumaßnahmen wartet die Bezirkssportanlage »Volksparkstadion« mit einem erweiterten Sportangebot auf. Über 25 Sparten umfasst der OSC 04 Rheinhausen. Das neue Herzstück der 10 ha großen Anlage bildet das im Januar 2017 feierlich eingeweihte Vereins- und Bewegungszentrum.
In der modernen Sportwelt stehen neben Fitnessgeräten für den Ausdauer- und Kraftsport auch Gymnastikräume für Yoga, Zumba, Pilates und Tanz zur Verfügung. Bereits im 1. Bauabschnitt wurde ein Naturrasenplatz in ein Kunststoffrasenspielfeld umgewandelt.